Quadrilocale in vendita

Palermo, P.za Villagrazia - Villagrazia
€ 85.000
4 locali 4 locali
102 Mq 102 Mq
1 bagno 1 bagno

Quadrilocale in vendita

Palermo, P.za Villagrazia - Villagrazia

Descrizione annuncio

VILLAGRAZIA - In Piazza Villagrazia, precisamente nel cuore del quartiere, disponiamo di un terzo piano posto all'interno di un contesto condominiale privo di ascensore.

ZONA - La zona è ben servita da servizi, scuole di diverso grado d'istruzione, da trasporti pubblici che permettono di raggiungere il centro in pochi minuti, da attività commerciali di vario genere come supermercati, panifici, bar, farmacie e chiese.

LO STABILE - Il prospetto è stato totalmente ristrutturato e tutti gli ambienti circostanti sono mantenuti costantemente ben curati e puliti.

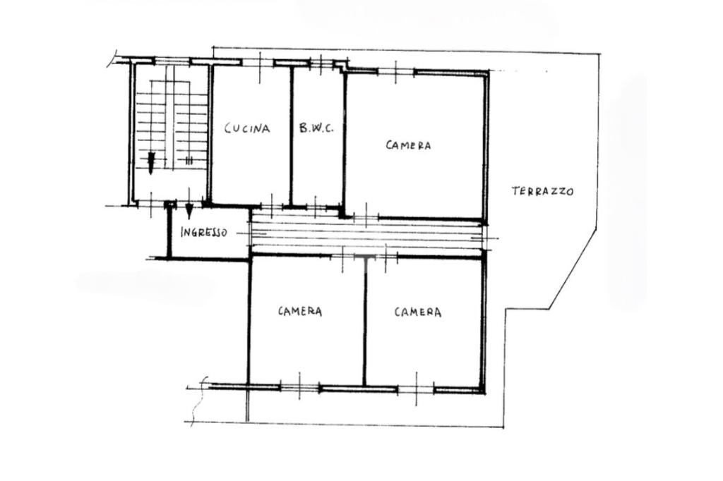
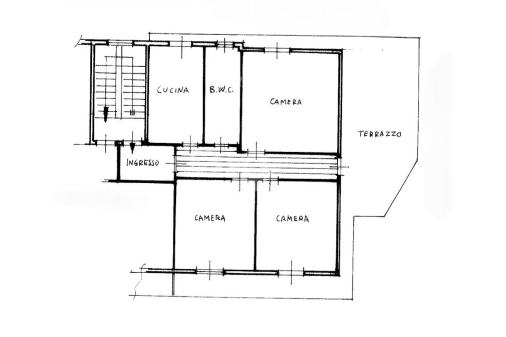
L'APPARTAMENTO - è composto da ingresso su disimpegno, cameretta, camera da letto, cucina soggiorno , bagno finestrato con doccia, ripostiglio e un ampio terrazzo che gira attorno a tutto l’immobile.

Risulta essere luminoso e ventilato grazie alla tripla esposizione e si presenta in buono stato di manutenzione interna inoltre gli infissi sono in PVC effetto legno e doppi vetri.

E' possibile visionarlo tutti i giorni previo appuntamento telefonico.

Chiedici come poterlo acquistare, ti fisseremo subito una consulenza finanziaria gratuita e senza impegno.

Vuoi ricevere maggiori informazioni e fissare un appuntamento?

Contattaci allo 091445309 oppure utilizza il servizio WhatsApp al numero 3278475251.

Vuoi rimanere sempre aggiornato sui nostri nuovi immobili e sull'ampliamento del nostro portafoglio immobiliare?

Segui le nostre Pagine Social:

Puoi trovarci su instagram tecnocasa_bonagia e/o su facebook Gruppo Tecnocasa Palermo Bonagia.

Mostra tutto

Nelle vicinanze

Trasporto pubblico Trasporto pubblico
Pollaci/Calatafimi
Pollaci/Calatafimi
2,9 Km
Villagrazia - Zuppetta
Villagrazia - Zuppetta
70 m
Villagrazia - Agnetta
Villagrazia - Agnetta
140 m
Ricariche auto elettriche Ricariche auto elettriche
IONITY Basile Palermo
2,6 Km
Conad Centro Commerciale Ai Leoni | EnelX
2,8 Km
Scuole Scuole
Raffaello Sanzio
2,1 Km
Raffello Sanzio
2,2 Km
Scuole
2,2 Km
IC Vittorio Emanuele III
2,3 Km
Istituto Superiore Statale "Mario Rutelli"
2,4 Km
Farmacia Farmacia
Farmacia
2,3 Km
Farmacia Villa Tasca
2,4 Km
Marrocco
2,4 Km
Farmacia Villaciambra
2,5 Km
Farmacia G. Calì
2,6 Km
Ospedali Ospedali
Ospedale G. F. Ingrassia
2,5 Km
Supermercati Supermercati
CONAD
1,4 Km
Lidl
2,0 Km
Sigma
2,1 Km
Cerrefour
2,4 Km
Conad
2,8 Km
Negozi Negozi
Castelluzzo
2,1 Km
Negozi
2,2 Km
Antico Forno del Viale
2,5 Km
Quick SISA
2,5 Km
Euromania
2,5 Km
Bar Bar
Baby Luna
1,5 Km
Bar
3,0 Km
Ristoranti Ristoranti
Duetto
2,1 Km
Il Ghiottone
2,4 Km
Pizzeria
2,4 Km
Risto Pizza
2,5 Km
Pizzeria Panineria
2,5 Km
Mostra tutto

Caratteristiche

Rif.:
61153303
Piano:
3 (Piano alto)
Balconi:
1
Terrazzi:
1
Camere da letto:
2
Arredamento:
Assente
Mostra tutto
Prezzo Prezzo
€ 85.000
Rata mutuo Rata mutuo
€ 401 / mese
Proponi il tuo prezzoProponi il tuo prezzo
Immobile valutato con T·Valuta

Classe Energetica

G
G
G
G
G
G
G
G
G
Anno di costruzione:
1970
Riscaldamento:
Assente

Ti interessa visionare l'immobile?

Fissa un appuntamento  Fissa un appuntamento

Richiedi informazioni

Clicca su Leggi per aprire l'informativa
* Questi campi sono obbligatori

Calcola il tuo mutuo

Semplice e senza impegno
Anticipo

( % )
Mutuo

( % )

pochi semplici passi

inserisci i tuoi dati
Questionario completato
Grazie per aver richiesto un appuntamento senza impegno con un nostro Consulente del Credito e Assicurativo.

Hai inserito correttamente tutti i dati necessari e a breve riceverai una e-mail con un link da convalidare per inviare i tuoi dati.
Affiliato
Bonagia Srl
Via Mico Geraci, 45 90125 Palermo (PA)

Il nostro staff


  • Roberto Puccio
    Affiliato

  • Asia Maria Bucceri
    Collaboratrice

  • Annalisa Ginelli
    Collaboratrice

  • Giuseppa Amato
    Collaboratrice

  • Giuseppe Tarantino
    Responsabile
Via Mico Geraci, 45 90125 Palermo (PA)
Zona: Bonagia - Falsomiele - Borgo Ulivia
Mostra su mappa
Orari: 09:00 - 13:00 /15:30 - 20:00
Affiliato
Bonagia Srl
Via Mico Geraci, 45 90125 Palermo (PA)

2026 Tecnocasa Franchising S.p.A. - P. IVA 08365160152 - Via Monte Bianco 60/A 20089 Rozzano (MI). Ogni agenzia ha un proprio titolare ed è autonoma. Privacy policy | Policy utilizzo | Cookie policy