Palazzina in vendita

Palermo, Via Belmonte Chiavelli - Chiavelli
€ 82.000
Prezzo aggiornato
6 locali 6 locali
139 Mq 139 Mq
3 bagni 3 bagni

Palazzina in vendita

Palermo, Via Belmonte Chiavelli - Chiavelli

Descrizione annuncio

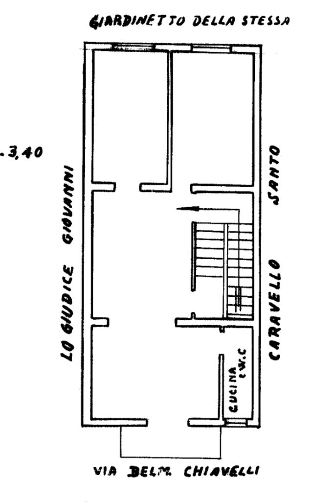
CHIAVELLI - In Via Belmonte Chiavelli, disponiamo di una palazzina indipendente posta su due livelli.

ZONA - La zona è ben servita dai trasporti pubblici. Nelle immediate vicinanze dell'unità abitativa sono presenti mini market, panifici, bar, farmacie, servizi postali e scuole di vario grado d'istruzione.

LA PALAZZINA - è costituita da 2 piani fuori terra e si presenta in discrete condizioni di manutenzione interna.

E' così composta:

al piano terra abbiamo ingresso su soggiorno, camera da letto, cucina, e bagno.

il primo piano dispone di un soggiorno, cucina abitabile con accesso su balcone, bagno finestrato con doccia, camera da letto e cameretta.

E' presente la predisposizione per l'impianto di condizionamento autonomo.

E' possibile visionarla tutti i giorni previo appuntamento telefonico.

Chiedici come poterlo acquistare, ti fisseremo subito una consulenza finanziaria gratuita e senza impegno.

Vuoi ricevere maggiori informazioni e fissare un appuntamento?

Contattaci allo 091445309 oppure utilizza il servizio WhatsApp al numero 3278475251.


Vuoi rimanere sempre aggiornato sui nostri nuovi immobili e sull'ampliamento del nostro portafoglio immobiliare?

Segui le nostre Pagine Social:
Puoi trovarci su instagram tecnocasa_bonagia e/o su facebook Gruppo Tecnocasa Palermo Bonagia.

Mostra tutto

Nelle vicinanze

Trasporto pubblico Trasporto pubblico
stazione di Palermo Brancaccio
stazione di Palermo Brancaccio
2,3 Km
Palermo Centrale
Palermo Centrale
2,7 Km
San Giovanni dei Lebbrosi
San Giovanni dei Lebbrosi
2,2 Km
Missori
Missori
2,2 Km
Levriere - Ermellino
Levriere - Ermellino
240 m
Ricariche auto elettriche Ricariche auto elettriche
IONITY Basile Palermo
2,6 Km
T.F. Car Service Palermo | EnelX
2,7 Km
Scuole Scuole
Scuola Elementare E.Salgari
1,0 Km
Scuola Media Statale G A Cesareo
1,0 Km
Scuola Elementare Guglielmo Oberdan
1,7 Km
Complesso Aule Nuove - Facoltà di Medicina e Chirurgia
2,0 Km
Rosolino Pilo
2,1 Km
Farmacia Farmacia
Farmacia
180 m
Listro
1,1 Km
Parafarmacia Conad
1,3 Km
Farmacia
2,2 Km
Farmacia Gallo
2,3 Km
Ospedali Ospedali
Ospedale Guadagna
1,2 Km
Policlinico (Nuove aule)
2,1 Km
Ospedale Civico e Benefratelli "G. Di Cristina" e "M. Ascoli"
2,2 Km
Azienda Ospedaliera Universitaria Policlinico "Paolo Giaccone"
2,3 Km
Ospedale Buccheri La Ferla Fatebenefratelli
2,7 Km
Supermercati Supermercati
Carrefour
280 m
SISA supermercato
870 m
Coop
910 m
Conad
1,3 Km
CONAD
1,9 Km
Negozi Negozi
Angolo del Pane
1,7 Km
Panificio Figli Fiorentino
2,1 Km
Dolci Tentazioni
2,6 Km
Panificio D'Amico Rosario
2,7 Km
Negozi
2,8 Km
Bar Bar
Willy
2,0 Km
Baby Luna
2,3 Km
Bar Accardi
2,5 Km
Massaro
2,8 Km
Ristoranti Ristoranti
Mensa
2,3 Km
Al Vecchio Ristoro del Corso
2,9 Km
Mostra tutto

Caratteristiche

Rif.:
61139871
Piano:
1 di 3 (Piano su più livelli)
Balconi:
2
Terrazzi:
1
Camere da letto:
3
Arredamento:
Assente
Mostra tutto
Prezzo Prezzo
€ 82.000
Rata mutuo Rata mutuo
€ 386 / mese
Proponi il tuo prezzoProponi il tuo prezzo

Classe Energetica

G
G
G
G
G
G
G
G
G
EP invernale del fabbricato:
EP estiva del fabbricato:
Anno di costruzione:
1939
Riscaldamento:
Assente

Prezzo ridotto di €1 (11%%)

Ti interessa visionare l'immobile?

Fissa un appuntamento  Fissa un appuntamento

Richiedi informazioni

Clicca su Leggi per aprire l'informativa
* Questi campi sono obbligatori

Calcola il tuo mutuo

Semplice e senza impegno
Anticipo

( % )
Mutuo

( % )

pochi semplici passi

inserisci i tuoi dati
Questionario completato
Grazie per aver richiesto un appuntamento senza impegno con un nostro Consulente del Credito e Assicurativo.

Hai inserito correttamente tutti i dati necessari e a breve riceverai una e-mail con un link da convalidare per inviare i tuoi dati.
Affiliato
Bonagia Srl
Via Mico Geraci, 45 90125 Palermo (PA)

Il nostro staff


  • Roberto Puccio
    Affiliato

  • Asia Maria Bucceri
    Collaboratrice

  • Annalisa Ginelli
    Collaboratrice

  • Giuseppa Amato
    Collaboratrice

  • Giuseppe Tarantino
    Responsabile
Via Mico Geraci, 45 90125 Palermo (PA)
Zona: Bonagia - Falsomiele - Borgo Ulivia
Mostra su mappa
Orari: 09:00 - 13:00 /15:30 - 20:00
Affiliato
Bonagia Srl
Via Mico Geraci, 45 90125 Palermo (PA)

2026 Tecnocasa Franchising S.p.A. - P. IVA 08365160152 - Via Monte Bianco 60/A 20089 Rozzano (MI). Ogni agenzia ha un proprio titolare ed è autonoma. Privacy policy | Policy utilizzo | Cookie policy