Quadrilocale in vendita

Palermo, Via Belmonte Chiavelli - Chiavelli
€ 110.000
4 locali 4 locali
142 Mq 142 Mq
2 bagni 2 bagni

Quadrilocale in vendita

Palermo, Via Belmonte Chiavelli - Chiavelli

Descrizione annuncio

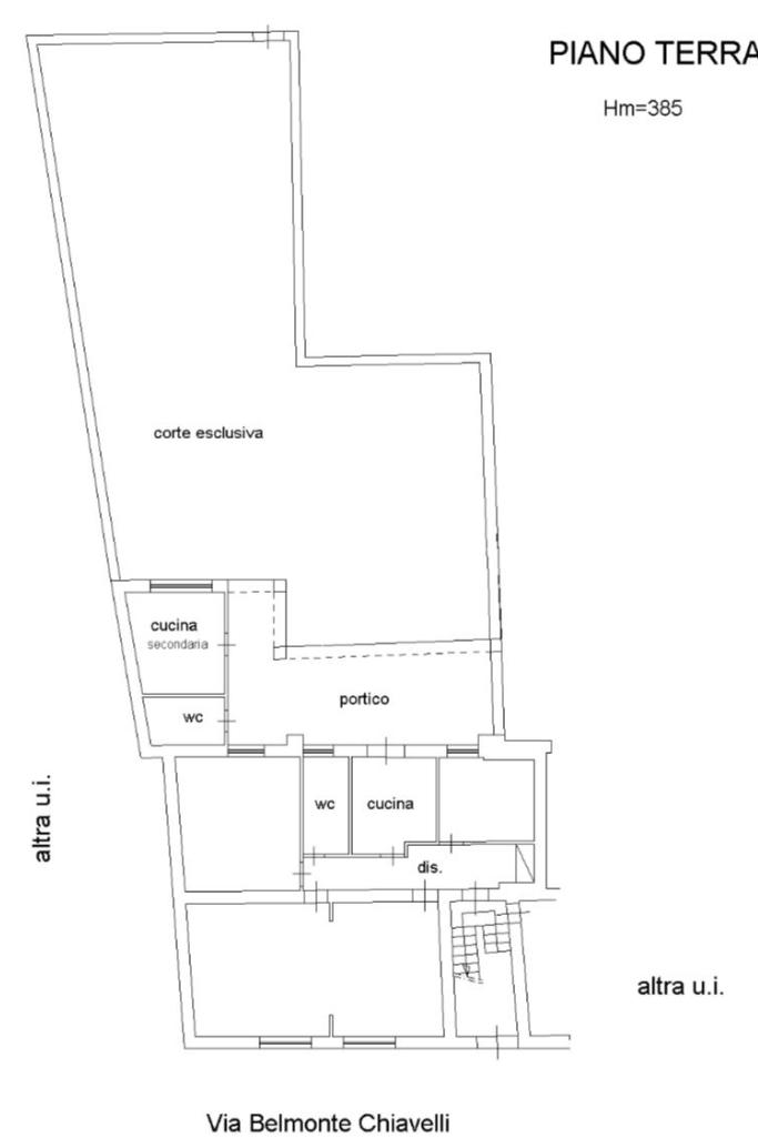
CHIAVELLI - In Via Belmonte Chiavelli, disponiamo di un quadrilocale posto al piano rialzato di una palazzina padronale con giardino di pertinenza esclusiva.

ZONA - Nelle vicinanze sono presenti diverse attività commerciali, in cui è possibile acquistare beni di prima necessità (carni e salumi Prestifilippo, Lucky Bar, Supermercato Eurospin e Famila etc), e fermate del Bus entro i 500 metri che permettono di raggiungere il centro città.

L'APPARTAMENTO - è composto da
ingresso su corridoio, salone doppio, cucina, camera da letto, cameretta e bagno;

dalla cucina si accede ad un porticato, all'interno del quale vi sono un angolo cottura e un bagno; dal porticato vi è l'accesso su un ampio giardino il quale presenta una piccola struttura in cemento da utilizzare come cantina.

L'immobile si presenta in discreto stato di manutenzione interna. Gli infissi sono in alluminio e la pavimentazione è in segato di marmo.

E' possibile visionarlo tutti i giorni previo appuntamento telefonico.

Chiedici come poterlo acquistare, ti fisseremo subito una consulenza finanziaria gratuita e senza impegno.

Vuoi ricevere maggiori informazioni e fissare un appuntamento?

Contattaci allo 091445309 oppure utilizza il servizio WhatsApp al numero 3278475251.

Vuoi rimanere sempre aggiornato sui nostri nuovi immobili e sull'ampliamento del nostro portafoglio immobiliare?

Segui le nostre Pagine Social:
Puoi trovarci su instagram tecnocasa_bonagia e/o su facebook Gruppo Tecnocasa Palermo Bonagia.

Mostra tutto

Nelle vicinanze

Trasporto pubblico Trasporto pubblico
stazione di Palermo Brancaccio
stazione di Palermo Brancaccio
2,5 Km
Missori
Missori
2,5 Km
San Giovanni dei Lebbrosi
San Giovanni dei Lebbrosi
2,5 Km
Trasporto pubblico
220 m
Levriere - Musacchia
Levriere - Musacchia
290 m
Ricariche auto elettriche Ricariche auto elettriche
IONITY Basile Palermo
2,8 Km
T.F. Car Service Palermo | EnelX
2,9 Km
Scuole Scuole
Scuola Elementare E.Salgari
1,4 Km
Scuola Media Statale G A Cesareo
1,4 Km
Scuola Elementare Guglielmo Oberdan
2,1 Km
Complesso Aule Nuove - Facoltà di Medicina e Chirurgia
2,3 Km
Rosolino Pilo
2,4 Km
Farmacia Farmacia
Farmacia
420 m
Listro
1,4 Km
Parafarmacia Conad
1,6 Km
Farmacia
2,5 Km
Farmacia Roccella
2,5 Km
Ospedali Ospedali
Ospedale Guadagna
1,5 Km
Policlinico (Nuove aule)
2,4 Km
Ospedale Civico e Benefratelli "G. Di Cristina" e "M. Ascoli"
2,5 Km
Azienda Ospedaliera Universitaria Policlinico "Paolo Giaccone"
2,6 Km
Supermercati Supermercati
Carrefour
590 m
SISA supermercato
1,2 Km
Coop
1,2 Km
Conad
1,6 Km
CONAD
1,9 Km
Negozi Negozi
Angolo del Pane
2,0 Km
Panificio Figli Fiorentino
2,5 Km
Dolci Tentazioni
2,9 Km
Bar Bar
Willy
2,3 Km
Baby Luna
2,3 Km
Bar Accardi
2,8 Km
Ristoranti Ristoranti
Mensa
2,6 Km
Mostra tutto

Caratteristiche

Rif.:
61064887
Piano:
Rialzato di 4 con ascensore
Totale piani:
4
Camere da letto:
1
Condizionamento:
Assente
Ascensore:
Mostra tutto
Prezzo Prezzo
€ 110.000
Rata mutuo Rata mutuo
€ 519 / mese
Proponi il tuo prezzoProponi il tuo prezzo

Classe Energetica

G
G
G
G
G
G
G
G
G
EP invernale del fabbricato:
EP estiva del fabbricato:
Anno di costruzione:
1980
Riscaldamento:
Assente

Ti interessa visionare l'immobile?

Fissa un appuntamento  Fissa un appuntamento

Richiedi informazioni

Clicca su Leggi per aprire l'informativa
* Questi campi sono obbligatori

Calcola il tuo mutuo

Semplice e senza impegno
Anticipo

( % )
Mutuo

( % )

pochi semplici passi

inserisci i tuoi dati
Questionario completato
Grazie per aver richiesto un appuntamento senza impegno con un nostro Consulente del Credito e Assicurativo.

Hai inserito correttamente tutti i dati necessari e a breve riceverai una e-mail con un link da convalidare per inviare i tuoi dati.
Affiliato
Bonagia Srl
Via Mico Geraci, 45 90125 Palermo (PA)

Il nostro staff


  • Roberto Puccio
    Affiliato

  • Asia Maria Bucceri
    Collaboratrice

  • Annalisa Ginelli
    Collaboratrice

  • Giuseppa Amato
    Collaboratrice

  • Giuseppe Tarantino
    Responsabile
Via Mico Geraci, 45 90125 Palermo (PA)
Zona: Bonagia - Falsomiele - Borgo Ulivia
Mostra su mappa
Orari: 09:00 - 13:00 /15:30 - 20:00
Affiliato
Bonagia Srl
Via Mico Geraci, 45 90125 Palermo (PA)

2025 Tecnocasa Franchising S.p.A. - P. IVA 08365160152 - Via Monte Bianco 60/A 20089 Rozzano (MI). Ogni agenzia ha un proprio titolare ed è autonoma. Privacy policy | Policy utilizzo | Cookie policy